Utbyggingsavtalen fastslår hvem som har ansvar for å gjennomføre og finansiere offentlig infrastruktur.
Skien kommune starter opp forhandlinger med Bjørkelund utvikling AS om utbyggingsavtale for pågående detaljregulering for GBNR. 54/32 – Bjørkelund, Tufte, planID 2021004.
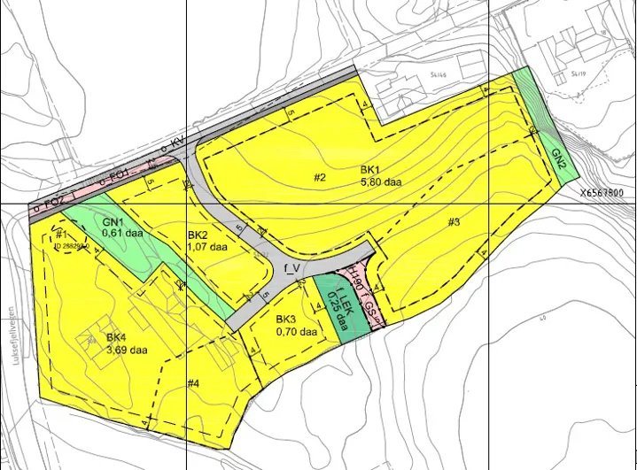
Reguleringsplanen ble førstegangsbehandlet 15.11.2022. Saksprotokoll og dokumenter kan du se i sak 90/22.
Fremforhandlet avtale vil bli lagt ut til offentlig ettersyn før den fremmes for behandling i bystyret. Innspill til forhandlingene kan rettes skriftlig til:
e-post: post@skien.kommune.no, eller postadresse: Skien kommune, Postboks 158, 3701 Skien.
Merk henvendelsen med saksnummer: 23/02889
Denne kunngjøringen er i henhold til plan- og bygningsloven av 27. juni 2008 nr. 71 § 17-4 første ledd.
Les mer om utbyggingsavtaler i Skien kommune.

Kontakt
-
Knut M. Amlie, utbyggingsansvarlig
- Telefon: 91 33 34 83
- Epost: Send e-post